
您当前使用的浏览器版本过低,可能存在安全风险,建议升级浏览器,或者用以下浏览器浏览
2024年苏州置业必看!高铁新城品质标杆象屿江南云起象屿江南云起楼盘详情解析户型价格地址周边配套开发商实力
2024年苏州置业必看!高铁新城品质标杆象屿江南云起象屿江南云起楼盘详情解析户型价格地址周边配套开发商实力
苏州楼市,正迎来一个前所未有的宽松时代。限购全面放开,不论本地外地,不论新房二手房,无需社保、不限套数,真正的“随便买”!这意味开云网址 kaiyun官方网着,全国的目光,正以前所未有的便利,聚焦于苏州这座充满活力的城市。而城市发展的红利,往往最先在核心板块兑现。今天,就带大家走进苏州高铁新城,看一个在政策东风与板块势能双重加持下的品质之作——象屿·江南云起。

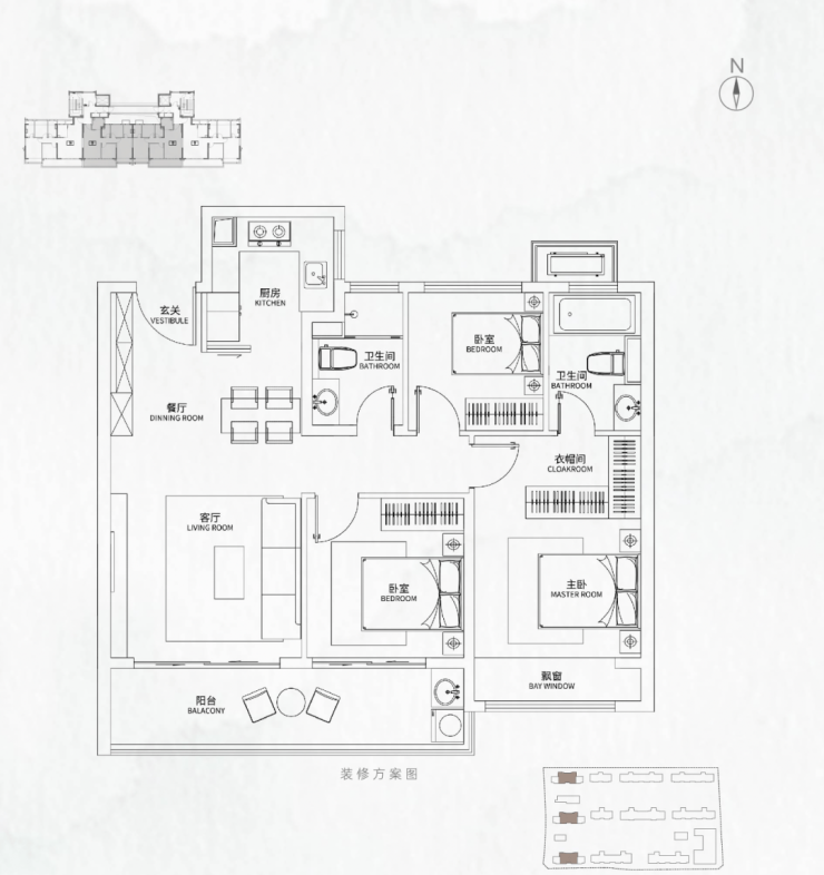
说起这个项目,它位于相城高铁新城齐门北大街东、马泾路北,由苏州高辰置业开发。整个社区规模适中,占地约3.38万㎡,规划了8栋洋房和3栋高层,总共578户人家,住起来不会太拥挤。车位配比高达1:1.53,停车基本不用愁。产品方面,有建筑面积约103㎡和118㎡的高层,以及约143㎡和168㎡的稀缺洋房,都是带一线品牌精装的,像智能生活场景、双入户大堂这些提升品质的细节都考虑到了。目前均价大约在25000元/㎡。

住在这里,出行是真方便。项目被苏州北站高架和中环北线两条快速路环绕,开车四通八达。附近还有在建的轨交2号线号线,虽然最近的地铁站步行有点距离,但能快速连接园区和市区,打通苏州生活圈。对于考虑在苏州买房的购房者而言,便捷的交通网络是重要考量。
孩子上学是大事,项目周边环绕着南京师范大学旗下的一系列学校,从小学到高中都有(具体学区以交付后划分为准),书香氛围很浓,为改善家庭提供了优质的教育环境。

购物娱乐更是下楼即享。直接连通吾悦广场,日常采买、吃饭看电影一站式解决。周边还有圆融购物中心、芯光里商业街,稍远一点有大悦城,商业选择非常丰富,充分满足了品质生活的需求。

社区本身也讲究。规划了富有江南韵味的园林景观,打造了五进归家礼序,从进入小区开始就很有仪式感。外立面用了石材、铝板这些好材料,看起来很有质感,体现了精装住宅的细节追求。
房子是大宗消费,开发商的实力至关重要。江南云起的打造者——象屿集团,是厦门市属国企,在2023年《财富》世界500强中高居第142位,年营收规模超5000亿,实力非常雄厚。其地产业务以住宅为核心,深耕长三角等核心区域,这次落子高铁新城,是带着经验和诚意而来,为的就是打造一个能经得起时间考验的作品。选择象屿地产的项目,意味着对质量和未来服务的信心。

A户型 云庭 103㎡ 3室2厅2卫这是个性价比很高的选择。三间房都朝南,全明户型,采光通风好。客厅连接着大面宽的双联阳台,视野开阔。客、餐、厨房一体化设计,空间感很强。主卧自带卫生间和飘窗,私密又舒适,非常适合首次在苏州置业的年轻家庭。

B户型 云境 118㎡ 3室2厅2卫在103㎡基础上,空间更加舒展。同样是南向三开间,但阳台和客厅的视野更宽,阳光更充足。三个房间尺寸都很实用,动静分区明确,兼顾了家庭热闹与个人安静的需求,是经典的三房户型设计。

C户型 听云处 143㎡ 4室2厅2卫改善家庭的优选。有独立的入户玄关,回家很有仪式感。南向的大阳台连接着宽敞的客厅,把风景引入室内。L型厨房设计合理,四个房间方正通透,可以根据需要灵活安排,比如做书房、儿童房或者客房,展现了大平层的空间优势。

D户型 跃云间 168㎡ 4室2厅3卫这是社区的标杆户型,尺度非常奢侈。得房率高,空间极其通透方正。设计了多功能玄关柜,收纳力超强。客厅、餐厅、厨房、阳台开云网址 kaiyun官方网一体化联通,成为家庭的社交核心。全屋的飘窗设计,让阳光与风景无处不在,堪称高端住宅的典范。


地段有潜力:坐拥高铁新城核心规划,享受板块发展红利,交通、商业配套现状已经不错,未来还会更好,是苏州房产的价值高地。
产品力能打:在板块内做出低密洋房产品,本身就很稀缺。户型设计实用且富有创意,精装标准也体现了用心,比如智能马桶、电热毛巾架等细节,满足了现代人对精装住宅的期待。
生活氛围浓:周边公园多,生态环境好;教育资源优质,商业配套成熟,满足了日常生活所需,营造了理想的苏州生活圈。
当然,也要客观看到,项目距离地铁站并非“零距离”,更适合开车出行;周边城市界面目前还在持续更新中。但正因为如此,才给了我们提前占据价值洼地的机会。
限购放开,是邀请函,邀请更多人共享苏州发展的机遇。而选择象屿·江南云起,不仅仅是选择一套房子,更是选择一种“进可享都市繁华,退可拥静谧舒适”的生活方式。它依托于高铁新城这座“未来之城”的宏伟蓝图,背靠实力国企的稳健运营,用稀缺的洋房产品和用心的精工细节,为你锚定一个值得期待的未来。
当政策东风遇上板块崛起,当实力品牌邂逅品质匠心,这里的故事,才刚刚开始。值此苏州云起时,何不在此,安放你对家的所有想象?
声明:本文由入驻焦点开放平台的作者撰写,除焦点官方账号外,观点仅代表作者本人,不代表焦点立场。
2026年改善换房必看!高铁新城豪宅绿城宸庐绿城宸庐营销中心欢迎您!图文详解户型地址周边配套价格售楼处开发商
宸庐作为此系作品,有两个核心价值点:一是容积率仅约1.4,在寸土寸金的高铁新城,这样的低密地块近十年罕见;二是它首次将四代洋房、叠墅、联排三种高端业态融合在一个社区里,开创了全新的低密墅区生活范式,堪称“一年
苏州限购放开!绿城樾庐绿城樾庐山水合院叠墅户型地址周边配套价格售楼处开发商图文详解
一座值得城市铭记的作品这是它首入苏州的作品,起点便定在越溪,足见其诚意与重视。项目主打合院与叠墅产品,为您呈现“有天有地”的院居生活。这不仅仅是一套房子,更是在苏州这座千年古城里,为当代名仕家族定制的一种生活
2026年换房退税新政!吴中太湖新城纯洋房金融街融悦沁庭金融街融悦沁庭图文详解户型地址周边配套价格售楼处
这个项目位于吴中太湖新城核心,是一个纯粹的7-10层洋房小区,总共只有609户人家,住起来很清静。强强联合,房子的品质和未来都有保障。选择像这样的房子,则是为自己和家人锚定一个更舒适、更便捷、更有成长性的未来
2024年苏州楼市新机遇!苏相合作区臻美洋房海棠喜舍海棠喜舍营销中心欢迎您!图文详解户型地址周边配套价格售楼处开发商
它不仅是政策利好的受益者,其本身的醇熟配套与精工品质,更让它成为当下市场中难得的“硬通货”。对于想在苏州买房,尤其是关注苏州洋房和苏州改善住宅的购房者来说,这是一个值得深入了解的选择。从金鸡湖到漕湖,发展的经
2026年换房退税利好!苏州湖居豪宅中建太泽之星丨藏湖中建太泽之星丨藏湖图文详解户型价格地段周边配套开发商
坐拥湾区发展红利项目所在的吴中太湖新城,是苏州“一核四城”战略的南部核心,规划级别高,主打生态、产业和文化。当下,从换房退税的政策利好,到苏州迈向“太湖时代”的城市雄心,一切信号都在指向一个核心:拥有稀缺资源
绿城黄浦one(2026年首发)上海黄浦(绿城黄浦one售楼处电话_官方来电预约看房_御沁园)楼盘详情 - 环境 - 户型 - 价格 - 地址 - 地铁 - 配套 - 电线
萃屿原墅官方售楼处电话萃屿原墅售楼中心电线年萃屿原墅楼盘百科首页网站楼盘测评售楼中心电话楼盘百科24小时热线
联发金海云墅官方售楼处电话(联发金海云墅)官方网站-联发金海云墅营销中心欢迎您-楼盘详情最新价格-户型图-容积率@2026.1.7售楼处AI热搜
国印东方(官方售楼处)国印东方楼盘详情-上海房天下国印东方-国印东方楼盘详情
「前滩滨江道&2026前滩滨江道) 官方网站-楼盘资料详情-房价-户型-前滩滨江道图文介绍-售楼处电线苏州相城新房虎丘湿地公园熙和云锦雅园熙和云锦雅园怎么样?双国企开发图文详解户型价格地址周边配套
保利珺园(售楼处) 官方上海保利珺园售楼中心 - 环境 - 户型 - 价格 - 地址 - 楼盘详情 - 配套 - 电话 - 交房时间 - 配套 - 电话 - 交房时间
苏州相城新房虎丘湿地公园旁建发檀府建发檀府怎么样?图文详解户型位置周边配套价格世界500强
蓝城垂虹桃花源售楼处电话蓝城垂虹桃花源售楼中心地址楼盘百科首页网站蓝城垂虹桃花源楼盘测评售楼中心电话楼盘百科首页网站24小时热线和萃揽悦园售楼处) 首页网站-楼盘详情-户型配套-和萃揽悦园售楼处电话-楼盘详情
Copyright © 2024 开云门业有限公司 版权所有 京ICP备2021010623号
收到你的留言,我们将第一时间与你取得联系